Measuring your Spa Cover
Measuring your Spa Cover
Measuring your Spa Cover
| ALPINE SPA COVERS MEASUREMENT FORM | ||||
|
ALPINE SIGNATURE |
ALPINE T.H.E. COVER |
ALPINE ULTIMATE |
ALPINE T.H.E. SUPREME |
ALPINE LITE |
| 1.5 LB FOAM - 2 YR WARRANTY 3"-2" TAPER R10 4"-2" TAPER R12 4"-3" TAPER R14 3" FLAT R12 4" FLAT R16 |
1.5 LB FOAM - 2 YR WARRANTY 3"-2" TAPER R10 4"-2" TAPER R12 4"-3" TAPER R14 3" FLAT R12 4" FLAT R16 |
2 LB FOAM - 3 YR WARRANTY 4"-3" TAPER R16 5"-4" TAPER R21 |
2 LB FOAM - 3 YR WARRANTY 4"-3" TAPER R16 5"-4" TAPER R21 |
1 LB FOAM - 1 YR WARRANTY 3"-2" TAPER R9 |
|
Although Alpine Spa Covers has a vast collection of manufacturer's tub specifications on file, we highly recommend that order information include the tub MAKE, MODEL, YEAR, AND ACTUAL TUB DIMENSIONS.
Special Instructions: _____________________________________________________
_____________________________________________________________________
_____________________________________________________________________ |
Colour __________________ |
|
|
OPTIONS |
||
Skirt Length (X) ____![]() |
||
|
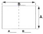
DOTTED LINE INDICATES FOLD DIRECTION - PLEASE FILL IN MEASUREMENTS ACCORDINGLY |
||
|
Square / Rectangle with Cut Corners
![]() |
Square / Rectangle with Round Corners
|
Rectangle
|
|
Octagon
|
Round
|
|
|
AGREEMENT BETWEEN DEALER AND SPA OWNER POLICY: Please order carefully! Spa covers are custom hand-crafted items, made to the information on this form. Alpine Spas and Skyview Industries will not accept returns due to incorrect information. Above CUSTOM ORDER FORM must be completed in full. Spa owner assumes responsibility for above cover specifications. |


